Σε αυτό το άρθρο, θα δούμε πώς να κατασκευάσετε μόνοι σας ένα θερμοκήπιο ή ένα θερμοκήπιο από άχρηστα υλικά. Θα σας προσφέρουμε οκτώ έργα με οδηγίες βήμα προς βήμα και φωτογραφίες. Ποιο θα επιλέξετε εξαρτάται από εσάς, με βάση τις ανάγκες σας.
Περιεχόμενο
- 1 DIY θερμοκήπιο φτιαγμένο από κλαδιά
- 2 DIY θερμοκήπιο φτιαγμένο από πλαστικά μπουκάλια
- 2.1 Επιλογή πλαστικών μπουκαλιών: Συμβουλές για αρχάριους
- 2.2 Υπολογισμός της απαιτούμενης ποσότητας υλικού
- 2.3 Βήμα προς βήμα οδηγίες για την κατασκευή ενός θερμοκηπίου από πλαστικά μπουκάλια
- 2.4 Πλεονεκτήματα ενός θερμοκηπίου από πλαστικά μπουκάλια
- 2.5 Μειονεκτήματα ενός θερμοκηπίου από πλαστικά μπουκάλια
- 3 Φτιάξτε μόνοι σας ένα θερμοκήπιο ή μια εστία από σακούλες από χώμα
- 4 DIY θερμοκήπιο από ξύλινες παλέτες
- 5 DIY θερμοκήπιο φτιαγμένο από κουφώματα παραθύρων
- 6 DIY θερμοκήπιο από ατσάλινο πλέγμα: Οδηγίες βήμα προς βήμα
- 7 DIY θερμοκήπιο από αγροΐνες και ενίσχυση
- 8 DIY θερμοκήπιο φτιαγμένο από stretch film
DIY θερμοκήπιο φτιαγμένο από κλαδιά
Η φουντουκιά ή η σορβιά είναι οι καλύτερες για το πλαίσιο ενός τέτοιου θερμοκηπίου, αλλά είναι επίσης κατάλληλες οι σημύδες, οι λεύκες και οι ιτιές. Τα κλαδιά δύο ή τριών ετών είναι τα καλύτερα. Μπορούν να είναι φρεσκοκομμένα ή να έχουν περισσέψει από προηγούμενη κηπουρική.
Προετοιμασία υλικών
Οι ειδικοί συνιστούν την προετοιμασία για την εργασία εκ των προτέρων. Για να το κάνετε αυτό, στα τέλη του χειμώνα ή στις αρχές της άνοιξης, κόψτε κλαδιά μήκους περίπου τριών μέτρων με διάμετρο κοπής 2 έως 2,5 εκ. Το κλειδί είναι να το κάνετε αυτό πριν το δέντρο ανακάμψει από τον χειμώνα και ξεκινήσει η εντατική ροή χυμών μέσω του κορμού και των κλαδιών.

Αφού κοπούν τα κλαδιά, ο φλοιός πρέπει να ξεφλουδιστεί, να αφαιρεθούν οι κόμποι και τα θραύσματα και το ξύλο να υποστεί επεξεργασία με ένα συντηρητικό για να παραταθεί η διάρκεια ζωής του τελικού θερμοκηπίου.
Βήμα προς βήμα οδηγίες για την κατασκευή ενός θερμοκηπίου από ξηρά κλαδιά
Είναι καλύτερο να επιλέξετε μια καθαρή, χωρίς αέρα μέρα για την εργασία. Ξύλινες δοκοί διαστάσεων 60 x 40 cm και οπλισμός με διατομή 16 έως 18 mm μπορούν να χρησιμεύσουν ως κάθετες στηρίξεις.
Για να διορθώσετε την ταινία, μπορείτε να χρησιμοποιήσετε ειδικά κλιπ.
Λίγες ώρες παραγωγικής εργασίας και το θερμοκήπιο με τα κλαδιά είναι έτοιμο. Το μόνο που έχετε να κάνετε είναι να βεβαιωθείτε ότι η μεμβράνη δεν θα υποστεί ζημιά κατά τη χρήση και ότι το πλαίσιο δεν θα ραγίσει ή δεν θα προσβληθεί από παράσιτα ή ασθένειες. Σε αυτήν την περίπτωση, τα κατεστραμμένα κλαδιά αφαιρούνται προσεκτικά από τη δομή και αντικαθίστανται με καινούργια και η μεμβράνη είτε επιδιορθώνεται για να διαρκέσει μέχρι το τέλος της σεζόν είτε αντικαθίσταται εντελώς.
Στην παρακάτω φωτογραφία, μπορείτε να δείτε πώς μπορείτε να φτιάξετε ένα ολόκληρο θερμοκήπιο από ξερά κλαδιά, όχι μόνο μια εστία:
Πλεονεκτήματα ενός θερμοκηπίου από ξερά κλαδιά
- φτηνός;
- γρήγορα;
- ελαφριά επισκευή;
- μεγάλη διάρκεια ζωής (έως 3 χρόνια).
Μειονεκτήματα ενός θερμοκηπίου από ξερά κλαδιά
Το μόνο πιθανό μειονέκτημα είναι η ευθραυστότητα ενός τέτοιου θερμοκηπίου · εάν φυσούν συχνά ισχυροί άνεμοι στην περιοχή σας, θα χρειαστεί να χρησιμοποιήσετε περισσότερα στηρίγματα και να κάνετε την αψίδα χαμηλότερη.
DIY θερμοκήπιο φτιαγμένο από πλαστικά μπουκάλια
Μπορείτε να κατασκευάσετε ένα αξιοπρεπές θερμοκήπιο από πλαστικά μπουκάλια, αλλά λόγω του μικρού βάρους τους, θα χρειαστείτε ένα αρκετά στιβαρό πλαίσιο. Ξύλινα δοκάρια ή ξυλεία με άκρες είναι ιδανικά για αυτό.
Πριν ξεκινήσετε την εργασία, πρέπει να επιλέξετε μια τοποθεσία για το θερμοκήπιο. Το μελλοντικό του μέγεθος θα καθοριστεί με βάση αυτό. Η καλύτερη επιλογή είναι μια νότια ή νοτιοανατολική έκθεση με καλό φωτισμό. Το έδαφος πρέπει να προετοιμαστεί εκ των προτέρων προσθέτοντας λίπασμα ή αναμειγνύοντάς το με χώμα υψηλής οργανικής περιεκτικότητας από άλλο μέρος του κήπου.
Επιλογή πλαστικών μπουκαλιών: Συμβουλές για αρχάριους
Μπορείτε να χρησιμοποιήσετε μια ποικιλία από μπουκάλια για να φτιάξετε ένα θερμοκήπιο. Τα μπουκάλια του ενάμισι λίτρου θα είναι πιο χρήσιμα, ενώ τα μπουκάλια των πέντε λίτρων θα είναι ένα πιο ανθεκτικό υλικό κατασκευής. Τα μπουκάλια πρέπει να είναι διαφανή ή ελαφρώς χρωματισμένα.
Όταν επιλέγετε μπουκάλια, βεβαιωθείτε ότι το πλαστικό δεν έχει υποστεί ζημιά. Αποφύγετε τα υλικά με λεπτά τοιχώματα. Είναι καλύτερο να επιλέξετε μπουκάλια που έχουν χρησιμοποιηθεί προηγουμένως στην παραγωγή τροφίμων. Είναι πιο πιθανό να πληρούν τα πρότυπα GOST.
Είναι αρκετά δύσκολο να συγκεντρώσετε τον απαιτούμενο αριθμό μπουκαλιών, ακόμη και με τη βοήθεια όλων των φίλων και της οικογένειάς σας, αλλά μπορείτε να αγοράσετε επιπλέον μπουκάλια σε εξειδικευμένα καταστήματα. Υπολογίστε το κόστος εκ των προτέρων.
Υπολογισμός της απαιτούμενης ποσότητας υλικού
Τα μπουκάλια διαφορετικών μεγεθών έχουν διαφορετικές διαστάσεις. Το μικρότερο μπουκάλι των 1,5 λίτρων έχει ύψος 32 cm και διάμετρο περίπου 9,5 cm. Γνωρίζοντας αυτές τις διαστάσεις, είναι εύκολο να υπολογίσετε πόσα δοχεία θα χρειαστείτε για ένα θερμοκήπιο 4 x 2,5 x 2 m:
- Μπουκάλι 1,5 λίτρου – από 700 έως 750 τεμάχια (ανάλογα με το ακριβές μέγεθος).
- Μπουκάλι 2 λίτρων – περίπου 600 τεμάχια.
- Για το πλαίσιο θα χρειαστείτε 4 σανίδες με άκρα διαστάσεων 20x200x6000 mm.
- Για τους κύριους οδηγούς, θα πρέπει να προετοιμάσετε 15 ράβδους: 12 τεμάχια διαστάσεων 50x50x3000 mm και 3 τεμάχια διαστάσεων 20x20x6000 mm.
- Για να τοποθετήσετε την τάφρο θα χρειαστείτε τσιμεντόλιθο στέγης, τουλάχιστον 10 μέτρα.
- Για στερέωση: νάιλον νήμα ή πετονιά, λεπτές ράγες, καρφιά, βίδες και συνδετήρες.
Προετοιμάστε τα απαραίτητα εργαλεία: σφυρί, κατσαβίδι, επίπεδο, ψαλίδι και μεζούρα.
Βήμα προς βήμα οδηγίες για την κατασκευή ενός θερμοκηπίου από πλαστικά μπουκάλια
Πλεονεκτήματα ενός θερμοκηπίου από πλαστικά μπουκάλια
- οι τοίχοι και η οροφή αφήνουν να περάσει αρκετό φως.
- υψηλή στεγανότητα με σωστή συναρμολόγηση της δομής.
- αντοχή στις αλλαγές θερμοκρασίας.
- υψηλές θερμομονωτικές ιδιότητες.
- γρήγορη εγκατάσταση;
- φτηνός;
- μεγάλη διάρκεια ζωής (έως 7 έτη).
Σε ένα τέτοιο θερμοκήπιο, μπορείτε να ξεκινήσετε την καλλιέργεια ήδη από τον Μάρτιο, και μέχρι τα τέλη Νοεμβρίου, τα αγαπημένα χόρτα πολλών ανθρώπων (άνηθος, μαϊντανός και τα παρόμοια) θα ευδοκιμήσουν σε αυτό.
Μειονεκτήματα ενός θερμοκηπίου από πλαστικά μπουκάλια
Το κύριο μειονέκτημα αυτού του τύπου θερμοκηπίου είναι η αναξιοπιστία των συνδέσμων. Ακόμα και το πιο ανθεκτικό νήμα ή πετονιά θα σπάσει με την πάροδο του χρόνου. Μια πιο οικονομική επιλογή είναι να χρησιμοποιήσετε λεπτές ράγες αντί για πετονιά.
Επιπλέον, τα πλαστικά μπουκάλια δεν είναι πολύ ανθεκτικά στις μηχανικές βλάβες, επομένως πρέπει να είστε πολύ προσεκτικοί όταν αιωρείτε εργαλεία κήπου σε αυτό το θερμοκήπιο.
Φτιάξτε μόνοι σας ένα θερμοκήπιο ή μια εστία από σακούλες από χώμα
Αυτός ο τύπος θερμοκηπίου είναι κατάλληλος για την καλλιέργεια θερμοφιλικών καλλιεργειών που δεν απαιτούν πολύ φως, όπως τα αγγούρια. Το φως θα διεισδύσει μόνο μέσα από τη διαφανή οροφή.
Διαβάστε επίσης πώς να το κάνετε DIY θερμοκήπια και εστίες για αγγούρια.
Βήμα προς βήμα οδηγίες για την κατασκευή ενός θερμοκηπίου από γήινους σάκους
Αυτή η επιλογή είναι ιδανική για όσους έχουν πολύ περίσσεια χώματος μετά την ολοκλήρωση της κατασκευής ή, για παράδειγμα, το σκάψιμο μιας λίμνης. Το μόνο που χρειάζεστε είναι σακούλες πολυπροπυλενίου πάχους 50 κιλών. Γεμάτες με υγρό χώμα, θα χρησιμεύσουν ως τούβλα για τους τοίχους. Ο αριθμός των σακουλών που χρειάζεστε εξαρτάται από το ύψος και την επιφάνεια της κατασκευής που κατασκευάζεται.
Για το θερμοκήπιο θα χρειαστείτε ένα φέρον θεμέλιο. Για αυτό είναι κατάλληλο λεπτό θρυμματισμένο πέτρωμα. Το υλικό αυτό συσκευάζεται σφιχτά σε σακούλες, οι οποίες στη συνέχεια τοποθετούνται γύρω από την περίμετρο της θεμελίωσης. Για μεγαλύτερη αντοχή, η πρώτη σειρά πρέπει να έχει πλάτος 2-3 σακούλες και στη συνέχεια μπορούν να προστεθούν μία ή δύο σακούλες στις επόμενες σειρές.
Μερικές φορές συνιστάται να εμβαθύνετε λίγο τα θεμέλια των τοίχων σκάβοντας σακούλες από χώμα ή θρυμματισμένη πέτρα μισό μέτρο στο έδαφος και ψεκάζοντας άμμο στα πλάγια.
Αν ανησυχείτε για τη δομική ακεραιότητα, μπορείτε να ενισχύσετε τους αυτοσχέδιους τοίχους με κάθετες δοκούς στήριξης ή χαλύβδινη ενίσχυση. Στις γωνίες της προκύπτουσας κατασκευής, τοποθετήστε δοκούς στο έδαφος, ελαφρώς ψηλότερα από τον τοίχο, και ασφαλίστε τους με οδηγούς στους οποίους θα στερεωθεί η δομή της στέγης. Η στέγη μπορεί να είναι κατασκευασμένη από οπλισμό, ράβδους ή σανίδες και να καλύπτεται με ένα παχύ πλαστικό φύλλο.
Εάν το θερμοκήπιό σας είναι αρκετά φαρδύ, τότε στο κέντρο της κατασκευής από μέσα πρέπει να κάνετε πρόσθετη ενίσχυση για την οροφή σκάβοντας αρκετές δοκούς στήριξης στο έδαφος.
Πλεονεκτήματα ενός θερμοκηπίου με σακούλα χώματος
Αυτός ο τύπος θερμοκηπίου έχει πολλά πλεονεκτήματα:
- φτηνός;
- Μόλις;
- αξιόπιστος;
- ανθεκτικότητα στη λειτουργία.
Μειονεκτήματα ενός θερμοκηπίου με σακούλα χώματος
Τα μειονεκτήματα περιλαμβάνουν περιορισμένο φωτισμό και μια όχι πολύ ελκυστική εμφάνιση.
DIY θερμοκήπιο από ξύλινες παλέτες
Πολλοί κηπουροί έχουν ένα τεράστιο απόθεμα από ευρωπαλέτες, οι οποίες μπορούν να προσαρμοστούν για την κατασκευή ενός μικρού θερμοκηπίου. Μπορούν να χρησιμοποιηθούν αποσυναρμολογημένες σε μεμονωμένες σανίδες. Λαμβάνοντας υπόψη ότι μια ευρωπαλέτα έχει διαστάσεις 1200 x 800 mm, μετά την αποσυναρμολόγησή της, θα έχουμε 11 σανίδες και 9 δοκούς βέλτιστου μεγέθους για κατασκευή. Τα υπόλοιπα εξαρτώνται από την ποσότητα και τη φαντασία σας.
Βήμα προς βήμα οδηγίες για την κατασκευή ενός θερμοκηπίου από ξύλινες παλέτες
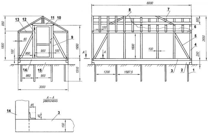
Προσφέρουμε ένα θερμοκήπιο με κεκλιμένη στέγη διαστάσεων 4 x 2,5 x 2 μ. Δεν θα χρειαστούν περισσότερες από 15 παλέτες.
Κατασκευάζουμε τη βάση και τα πλευρικά τοιχώματα από τις μακρύτερες σανίδες, στερεώνοντάς τες μεταξύ τους με στηρίγματα και σανίδες. Προσθέτουμε ακαμψία στους τοίχους με σανίδες οδηγούς. Για να εξασφαλίσουμε τη δομική σταθερότητα, γεμίζουμε το εξωτερικό του τοίχου με χώμα ή «βυθίζουμε» ελαφρώς τους τοίχους στο έδαφος.
Κατασκευάζουμε τη δομή της στέγης από φαρδιές σανίδες, επικαλύπτοντάς τες με βίδες και σανίδες. Καλύπτουμε την στέγη με ένα ανθεκτικό πλαστικό φύλλο, στερεώνοντάς το στη θέση του με ένα πιστόλι καρφιών.
Πλεονεκτήματα ενός θερμοκηπίου από ξύλινες παλέτες
- ευκολία και ταχύτητα εγκατάστασης.
- δύναμη;
- φτηνός.
Αυτό το θερμοκήπιο θα διαρκέσει για αρκετές σεζόν. Οι σανίδες μπορούν επιπλέον να υποστούν επεξεργασία με αντισηπτικό. Η εύκολη συναρμολόγηση επιτρέπει την εύκολη αποσυναρμολόγηση και αποθήκευση κατά τη διάρκεια του χειμώνα.
DIY θερμοκήπιο φτιαγμένο από κουφώματα παραθύρων
Αυτή η μέθοδος κατασκευής θερμοκηπίου είναι εξαιρετικά δημοφιλής στους κηπουρούς. Τα παλιά κουφώματα βρίσκονται συνήθως σε αφθονία σε κάθε τρίτο οικόπεδο κήπου.
Αυτό το εύκολα διαθέσιμο υλικό είναι ιδανικό για την κατασκευή θερμοκηπίων ποικίλης πολυπλοκότητας και μεγέθους, καθώς και θερμοκηπίων. Η έλλειψη αρκετών υαλοπινάκων μπορεί να αντισταθμιστεί με παχύ, διαφανές φιλμ. Αυτό το θερμοκήπιο θα είναι φωτεινό και, αν σφραγιστεί σωστά, μπορεί να παραμείνει στο χώρο για να ξεχειμωνιάσει, με δυνατές φυτεύσεις από τον Μάρτιο μέχρι τα τέλη του φθινοπώρου.
Διαβάστε το άρθρο για το πώς να το κάνετε DIY θερμοκήπια και εστίες από κουφώματα παραθύρων.
Βήμα προς βήμα οδηγίες για την κατασκευή ενός θερμοκηπίου από κουφώματα παραθύρων
Για τους πλευρικούς τοίχους χρησιμοποιούνται μεγάλα πλαίσια με τρία ή δύο φύλλα, ενώ για τους ακραίους τοίχους είναι καλύτερα σχέδια με ένα φύλλο. Όλες οι φωτογραφίες μπορούν να προβληθούν σε μεγαλύτερο μέγεθος κάνοντας κλικ πάνω τους.
Πλεονεκτήματα ενός θερμοκηπίου κατασκευασμένου από κουφώματα παραθύρων
Αυτός ο τύπος θερμοκηπίου έχει πολλά ορατά πλεονεκτήματα:
- αξιοπρεπής εμφάνιση;
- φτηνός;
- αντοχή στον παγετό;
- υψηλή διαπερατότητα φωτός;
- υψηλή αντοχή;
- εξαιρετική θερμομόνωση.
Μειονεκτήματα ενός θερμοκηπίου κατασκευασμένου από κουφώματα παραθύρων
Μεταξύ των μειονεκτημάτων του θερμοκηπίου, μπορεί κανείς να σημειώσει τη δυσκολία δημιουργίας υποστήριξης και θεμελίωσης για όσους δεν έχουν κάνει ποτέ κάτι τέτοιο πριν, καθώς και την ευθραυστότητα του γυαλιού, το οποίο είναι πολύ εύκολο να καταστραφεί, αλλά αρκετά δύσκολο να αντικατασταθεί.
DIY θερμοκήπιο από ατσάλινο πλέγμα: Οδηγίες βήμα προς βήμα
Αυτή η δομή δεν απαιτεί θεμέλιο · η υποστήριξή της θα είναι ένα ξύλινο κουτί του απαιτούμενου μεγέθους, χτυπημένο από σανίδες με άκρες, το οποίο θα πρέπει πρώτα να υποβληθεί σε επεξεργασία με ένα μέσο σήψης και ελέγχου παρασίτων.
Εάν η επιφάνεια του εδάφους είναι αρκετά επίπεδη και η περιοχή δεν είναι επιρρεπής σε κινούμενη άμμο, τότε η θεμελίωση μπορεί να αποτελείται από αρκετούς στύλους που έχουν τοποθετηθεί στο έδαφος σε απόσταση ενός μέτρου ο ένας από τον άλλον.
Για τη σταθεροποίηση της οροφής, στο κέντρο του περάσματος σκάβονται στηρίγματα σε σχήμα Τ. Τα ακραία τοιχώματα μπορούν να επενδυθούν με εύκαμπτους σωλήνες για να παρέχουν πρόσθετη ακαμψία στο μελλοντικό θερμοκήπιο.
Δύο κομμάτια πλέγματος τοποθετούνται το ένα πάνω στο άλλο στο τελικό πλαίσιο. Στερεώνονται μεταξύ τους με χοντρό σύρμα ή ειδικά συνδετήρες και οι άκρες του πλέγματος στερεώνονται με τον ίδιο τρόπο στα ξύλινα στηρίγματα ή στη βάση σανίδας.
Το τελειωμένο θερμοκήπιο καλύπτεται με μια παχιά μεμβράνη στην κορυφή, δένεται σε πολλά σημεία με χοντρό σπάγκο για να το προστατεύει από τον άνεμο και στερεώνεται στη βάση της κατασκευής. Η μεμβράνη διπλώνεται πάνω από τα άκρα των τοίχων για να σχηματίσει μια αψίδα και στερεώνεται στην υπάρχουσα στέγη και στα πλευρικά τοιχώματα με ταινία.
Ένα ξύλινο πλαίσιο είναι προκατασκευασμένο και τοποθετημένο για την πόρτα, το οποίο μπορεί επίσης να καλυφθεί με μεμβράνη. Αν δεν θέλετε να ασχοληθείτε με επιπλέον κατασκευές, μπορείτε να κόψετε ένα μικρό άνοιγμα στην μεμβράνη στο άκρο και να κολλήσετε μερικούς μαγνήτες για να κλείσετε την πόρτα σαν κουνουπιέρα.
Σε πολλά σημεία, πρέπει να κόψετε παράθυρα εξαερισμού που θα συγκρατηθούν στη θέση τους με ταινία ή ταινία κάλυψης.
Πλεονεκτήματα ενός θερμοκηπίου από χαλύβδινο πλέγμα
Τα πλεονεκτήματα αυτού του θερμοκηπίου περιλαμβάνουν:
- ευκολία συναρμολόγησης
- φθηνότητα κατασκευής
- καλή διαπερατότητα φωτός.
- υψηλή θερμομόνωση.
DIY θερμοκήπιο από αγροΐνες και ενίσχυση
Αυτός ο τύπος θερμοκηπίου βρίσκεται συχνότερα σε οικόπεδα κήπου. Η κατασκευή του δεν απαιτεί καμία ειδική δεξιότητα ή σημαντικό κόστος υλικών.
Βήμα προς βήμα οδηγίες για την κατασκευή ενός θερμοκηπίου χρησιμοποιώντας Sanbond και οπλισμό
Μπορείτε να χρησιμοποιήσετε οπλισμό ή πλαστικές καμάρες ως υλικό στο χέρι, και η αγροΐνη (spunbond) ή η παχιά μεμβράνη θα χρησιμεύσουν ως υλικό κάλυψης.
Αυτή η επιλογή είναι βολική επειδή δεν απαιτεί την κατασκευή ενός θεμελίου και το θερμοκήπιο μπορεί να έχει απολύτως οποιοδήποτε μέγεθος ανάλογα με την περιοχή του χώρου.
Αν επιλέξετε να χρησιμοποιήσετε ενίσχυση για την εργασία, τότε για ένα θερμοκήπιο πλάτους 80 cm, είναι καλύτερο να χρησιμοποιήσετε ράβδους έξι μέτρων, οι οποίες μπορούν εύκολα να κοπούν στο μισό.
Οι ράβδοι σχηματίζονται σε τόξα, τα οποία σκάβονται στο έδαφος κάθε 1-1,5 μέτρα. Αυτή η μέθοδος είναι η απλούστερη, αλλά λιγότερο αξιόπιστη.
Οι έμπειροι κηπουροί συνιστούν να προχωρήσετε περισσότερο και να τοποθετήσετε σε κάθε καμάρα ένα περίβλημα λάστιχου. Συνήθως, υπάρχουν πάντα λάστιχα που δεν χρησιμοποιούνται για διάφορους λόγους. Ο λάστιχος κόβεται έτσι ώστε να πέφτει περίπου 10 cm κάτω από το άκρο της καμάρας.
Στη συνέχεια, τα τεμάχια των σωλήνων μπαίνουν στο έδαφος. Εάν αυτά δεν είναι διαθέσιμα, μπορούν να ανοιχτούν εκ των προτέρων τρύπες στο ξύλο για να χωρέσουν οι καμάρες των ράβδων οπλισμού. Αυτά τα κομμάτια μπαίνουν στο έδαφος σε διαστήματα 20 cm.

Η προκύπτουσα δομή των ασφαλισμένων καμάρων καλύπτεται με μεμβράνη ή spunbond. Εάν έχετε ραπτομηχανή και λίγο ελεύθερο χρόνο, μπορείτε να πάρετε μετρήσεις εκ των προτέρων και να ράψετε το κάλυμμα για να δημιουργήσετε τσέπες για τις καμάρες.
Οι πασσάλους τοποθετούνται σε μικρή απόσταση από τα άκρα του θερμοκηπίου και το υλικό κάλυψης τραβιέται μεταξύ τους στα πλάγια με ένα χοντρό σχοινί και στερεώνεται στους πασσάλους χρησιμοποιώντας ειδικά κλιπ.
Μπορείτε να αφήσετε χαλαρά τα άκρα της μεμβράνης και να την κρατήσετε στο έδαφος με μερικά τούβλα.
DIY θερμοκήπιο φτιαγμένο από stretch film
Ένας άλλος οικονομικός τρόπος για να κατασκευάσετε ένα θερμοκήπιο είναι να κατασκευάσετε ένα ξύλινο πλαίσιο και να το καλύψετε με μεμβράνη stretch, η απαιτούμενη ποσότητα της οποίας υπολογίζεται με βάση τις διαστάσεις του πλαισίου.

Αυτός ο τύπος θερμοκηπίου δεν απαιτεί θεμέλιο και αρκετές στρώσεις μεμβράνης επιτρέπουν τη διέλευση επαρκούς φωτός και τη διατήρηση της θερμότητας καλά. Το κλειδί είναι η προεπεξεργασία των ξύλινων στοιχείων για την αποφυγή σήψης και μούχλας, και η λείανση τυχόν περιοχών που θα μπορούσαν να προκαλέσουν ζημιά στη μεμβράνη.
Βήμα προς βήμα οδηγίες για την κατασκευή ενός θερμοκηπίου από stretch film
- Ένα ξύλινο πλαίσιο, στερεωμένο με χαλύβδινες γωνίες, μπορεί να χρησιμοποιηθεί ως βάση για το μελλοντικό θερμοκήπιο.
- Τα φέροντα στηρίγματα από ξύλο είναι στερεωμένα σε αυτό με βίδες αυτοεπιπεδώματος, που συνδέονται στην κορυφή με μια δοκό σύνδεσης.
- Οι γειτονικές δοκοί που σχηματίζουν μια γωνία στερεώνονται επιπλέον με κεκλιμένα τμήματα ξυλείας.
- Στη συνέχεια, κατασκευάζεται το πλαίσιο για την κεκλιμένη στέγη. Για να παρέχει ακαμψία, ενισχύεται σε πολλά σημεία με πρόσθετες δοκούς.
- Η οροφή είναι στερεωμένη στις άνω δοκούς των τοίχων χρησιμοποιώντας γωνίες και βίδες.
- Μόλις το πλαίσιο του θερμοκηπίου είναι έτοιμο, ξεκινά η περιτύλιξη με μεμβράνη. Αυτό γίνεται από κάτω για να αποφευχθεί η διείσδυση του νερού της βροχής. Η μεμβράνη τυλίγεται σε πολλά στρώματα για να αποφευχθεί η πρόωρη ζημιά από την υπεριώδη ακτινοβολία.
- Ένα πλαίσιο για την πόρτα είναι κατασκευασμένο εκ των προτέρων σε ένα από τα ακραία τοιχώματα · μπορεί επίσης να τυλιχτεί με μεμβράνη ή να καλυφθεί με σχάρες.












































