Оранжерията е чудесен начин за увеличаване на добива на различни култури. В тази статия ще обясним как сами да изградите стъклена оранжерия, ще предоставим подробни инструкции със снимки и ще обсъдим приблизителната цена на готовата конструкция.
Съдържание
- 1 Стъклото като материал за оранжерии – плюсове и минуси
- 2 Изграждане на стъклена оранжерия сами: размери, чертежи и какво да вземете предвид
- 3 Стъпка по стъпка инструкции за самостоятелно изграждане на стъклена оранжерия
- 4 Интериорен дизайн на стъклена оранжерия
- 5 Готови опции за стъклени оранжерии: съвети за избор + фотогалерия
- 6 Как да се грижим за стъклена оранжерия
- 7 Сравнение на стъклени и поликарбонатни оранжерии
Стъклото като материал за оранжерии – плюсове и минуси
Предимствата на стъклените покрития включват:
- почти пълна прозрачност и светлопропускливост на материала;
способността за поддържане на оптични свойства за дълго време (прозрачността на поликарбоната е с 10% по-ниска от тази на стъклото, а освен това всяка година поради микропукнатини тя намалява средно с 4%); - химическа инертност;
- лесен за поддръжка, може да се използва с широка гама от препарати;
- сравнителна устойчивост на абразивни влияния;
- нисък коефициент на термично разширение;
- възможността за рециклиране на стари прозорци и врати, съдържащи стъклени елементи, което има положителен ефект върху строителните разходи;
- лесна подмяна на повредени стъклени елементи;
- Високи естетически качества и икономическа ефективност на конструкцията – една оранжерия издържа средно 25-30 години, а инвестиционните разходи обикновено започват да се изплащат след 4-6 години експлоатация.
Не може обаче да не се отбележат редица уязвимости на материала:
- крехкост – обилна градушка може да повреди покритието;
- по-висока топлопроводимост в сравнение с други материали (например поликарбонат);
- сравнително голямо тегло (надвишава теглото на поликарбонатен лист с подобни параметри 2-3 пъти), което затруднява работата със стъкло и изисква монтирането на здрава рамка и надеждна основа.
Изграждане на стъклена оранжерия сами: размери, чертежи и какво да вземете предвид
При монтажа е важно да се помни, че минералното стъкло не може да издържи на променливи или огъващи натоварвания. Дизайнът на оранжерията също изисква твърда рамка и основа. Дори при пориви на вятъра и значителна снежна покривка, деформацията на рамката трябва да бъде минимална.
При избора на дизайн трябва да се има предвид, че простата правоъгълна форма на оранжерията опростява монтажа на рамката, докато диагонални скоби, наслагвания и стоманени ъгли се използват за укрепване на покрива и стените.
В някои случаи е за предпочитане рамката да се сглоби от различни секции, изработени в домашна работилница. Този метод опростява монтажа, позволявайки оранжерията да бъде сглобена от предварително сглобени компоненти в рамките на 24 часа върху предварително подготвена основа.
Методите за закрепване на минерално стъкло варират в зависимост от характеристиките на материала на рамката:
Ако рамката е изработена от дървоСтъклото се закрепва със силиконов уплътнител. Силиконът може да се използва и като уплътнител, като в този случай се закрепва с винтове и стъклопакет. Стъклото се монтира в специално подготвен жлеб (направен с фреза).
Ако рамката е метална, стъклото е поставено в стоманена рамка, запечатано с уплътнител и закрепено с пружинна скоба.
Всички оранжерии са изработени от минерално стъкло, препоръчително е да се монтира върху лентов фундамент.
Предварителните маркировки се правят с помощта на колове и въжета. След това се изкопава и уплътнява изкоп с дълбочина 30 см. Дъното се запълва с пясък (за да се образува пясъчна възглавница), върху дъното се полагат стоманени арматурни пръти с дебелина 8 мм (обикновено поне 3 мм) и изкопът се запълва с бетон.
След пет дни се полага основата на червената тухлена основа. Горната част на тухлената зидария се запечатва със смола и се покрива с покривен филц.
След 24 часа започваме сглобяването на рамката:
- те извършват работа по инсталиране на постоянни лехи, както и по оформяне на пътеки;
- долната носеща греда е сглобена (използват се греди с напречно сечение 6*6 см);
- под страничните стени е монтирана рамка;
- Монтират се вертикални стълбове.
Дървеният материал е закрепен към тухлената зидария с помощта на дюбели. Армировката в ъглите е осигурена с помощта на L-образни метални профили.
Компонентите на покрива (триъгълници на гредите) се сглобяват на земята съгласно предварително изготвен чертеж. Монтажът започва с монтирането на триъгълниците по стените. Първо се завършва фасадата на сградата, след това задният покрив и входът. Стълбовете и напречните греди се закрепват с скоби и дистанционни елементи.
След това започнете с монтажа на стъклото. Препоръчително е да започнете с покрива, като поставите стъклото в изрязаните жлебове и се уверите, че то следва контурите на силиконовия уплътнител.
След като облицовката е завършена, се монтират страничните и долните релси. За да се предотврати счупването на минералното стъкло, между вътрешната повърхност на дървената рамка и краищата на листа трябва да се остави разстояние от 2 мм.
Ако рамката е планирана да бъде изработена от метал, се препоръчва използването на горещовалцуван стоманен ъгъл с размер на рафта 20*3 мм.
За облицовка е подходящо минерално стъкло с размери 2000 x 1300 x 3,5 мм. Често за тази цел се закупува предварително изработен пакет от стъклени листове. Парчетата от всяка секция се изрязват на машина за рязане, след което се заваряват и почистват от котлен камък и метални отлагания. Подготвените секции се фосфатират и боядисват. Праховото боядисване е предпочитаният вариант.
Металните секции се сглобяват ръчно с помощта на скоби. Компонентите се съединяват с точкови заварки, а съединенията се заваряват по цялата височина. Завършената рамка се закрепва към основата с дюбели. Монтажът на стъклото е подобен на този върху дървена рамка.
Средно сглобяването на оранжерия отнема 2-3 дни. Основата трябва да е на мястото си, а дървените компоненти или стоманените секции трябва да бъдат предварително сглобени.
При разработването на проект за оранжерия, дизайнерите и инженерите обръщат внимание на формата, рамката и вида на остъкляването.
Форми на оранжерии
Стъклената оранжерия е елегантна структура. Може би поради тази причина дизайнерите са създали няколко варианта на нейната форма:
- класически с двускатен покрив;
- като разширение на сграда (препоръчително е да се изгради от южната ѝ страна);
- Митлидер;
- Термос - значителна част от конструкцията е разположена под нивото на земята, представлявайки тухлена или бетонна стена; характеризира се с много добра топлоизолация;
- Купол - идеален за осветление, силно устойчив на пориви на вятъра от всяка посока; дизайнът изисква монтаж на здрава и сложна рамка;
- Пирамидална - по отношение на сложността е междинна версия между фронтонната и куполната версия.
Видове рамки
Има и няколко варианта, когато става въпрос за метални рамки:
- от метални ъгли, заварени един към друг (стъклото се фиксира с помощта на скоби);
- чрез създаване на метален профил със стъклени пъзели (за закрепване се използват гумени уплътнения и уплътнител);
- от поцинковани профилирани тръби чрез свързването им с помощта на болтове, заваряване или самонарезни винтове (стъклото се фиксира с лепило или алуминиев затягащ профил).
Вид остъкляване
Що се отнася до стъклената облицовка, най-икономичният вариант е материал с дебелина 4 мм (прозоречно стъкло), закрепен към рамката със стъклопакети, скоби или затягащи профили. Оранжерия с този тип облицовка е предназначена само за сезонна употреба.
За постигане на по-високи топлоизолационни характеристики се препоръчва използването на еднокамерни или двукамерни стъклопакети.
Избор на местоположение
Когато избирате място, вземете предвид осветлението, ландшафта, вятърните условия и близостта до комунални услуги. Най-доброто място за оранжерия е на относително равна, добре осветена и слабо проветрива повърхност, разположена в близост до електропроводи и тръбопроводи.
Изготвяне на чертеж на стъклена оранжерия
Това е последният етап от подготовката за изграждане на оранжерия. Чертежът може да бъде създаден на хартия или на персонален компютър с помощта на софтуер за редактиране на графики.
Препоръчителният ред е:
- определят се параметрите на стъклото (например 1,6*2,2 м);
- избран е видът на основата (например с височина на основата 0,5 м);
- избират се греда и обтегачна дъска (с напречно сечение 1*1 м и 0,25*1,5 м);
- правят се изчисления на параметрите на остъкляващия елемент, както и на дължината, ширината и височината на конструкцията;
- изготвя се скица на конструкцията, върху която се прилагат проектните параметри;
- местоположението на прозорците на транца е маркирано;
- Извършват се изчисления на необходимото количество консумативи.
Най-често срещаната форма на рамката е правоъгълна, до голяма степен защото ви позволява бързо да сглобите оранжерия със собствените си ръце.
Местоположение
Когато избирате местоположението на бъдещата оранжерия, вземете предвид:
- възможност за свързване към водоснабдителни и електрически мрежи;
- удобна локализация;
- местен пейзаж - склоновете трябва да се избягват;
- роза на ветровете - при изграждането на конструкция трябва да се избягва ефектът на аеродинамичния тунел (местоположение между две капитални сгради);
- осветеност на избраната зона - оранжерията не трябва да се строи близо до ограда, под склонове на покриви или големи дървета - съществува риск тя да бъде засенчена, наводнена от дъжд или покрита със сняг.
Възможни основи за стъклени оранжерии
Изборът на основа за стъклена оранжерия се определя от характеристиките на материала, от който е направена рамката, както и от почвата.
Разграничават се следните видове основи:
- На стабилни, ненапрегнати почви и относително ниско ниво на подпочвените води се използва монолитна лента, изработена от бетон, блокове и тухли.
- Върху глинести почви, склонни към издигане и движение, при изграждането на масивна конструкция е необходима основа, направена като монолитна плоча.
- На много стабилна почва и ниско тегло на оранжерията се използват стълбове, изработени от блокове, бетон и тухли.
- Върху глинеста почва, непропусклива за валежи, се използват пилоти, изработени от дърво, бетон, метал, пластмаса или азбестоциментови тръби.
- При изграждането на нискотегловна конструкция на място за лятна вила, изборът често е ограничен до греди от масивна дървесина, обработени с хидрофобни съединения и антисептици.
Гредата, прикрепена към земята с пръти, е монтирана върху дренажна подложка и хидроизолация, изработена от покривен филц.
Препоръки за избор на стъкло
Най-често се използват остъкляващи материали с якост на опън 7,5 кг/м². Нискокачественото стъкло може да причини повреди поради повишена крехкост, ниска прозрачност и ефект на лещовидност, който може да увреди растенията.
Най-добрите видове стъкло за оранжерии се считат за тези, посочени в ГОСТ стандартите M4-M6 (като качеството намалява с увеличаване на степента). M4 се счита за полирано, докато M5 и M6 са неполирани.
Препоръчително е дебелината на стъклото да е равна или по-голяма от 4 мм. За двуслойно стъкло дебелината е 3,2 мм, а за стъкло за дисплеи - 6,4 мм.

Добро решение е използването на прозорци с единичен или двоен стъклопакет. При монтажа им трябва да се монтират гумени уплътнения (стъклото може да се разширява и свива при температурни колебания). Важно е да се има предвид, че прозорците с двоен стъклопакет намаляват пропускливостта на светлина с приблизително 50%.
От съображения за безопасност се препоръчва използването на закалено стъкло, което при повреда се разпада на малки фрагменти с размер до 1,5–2,0 см (относително по-големите фрагменти могат да причинят нараняване). Това обаче може да затрудни почистването на счупеното стъкло.
В северните ширини има смисъл да се използват топлоспестяващи видове стъкло.
Трябва да се има предвид, че топлоотразяващото стъкло може да окаже отрицателно въздействие върху растежа на топлолюбиви култури, а използването на защитни тъкани определено ще намали инсолацията на растенията.
Подготовка на материали и инструменти, изчисление
Приблизителната цена на необходимите материали за изграждане на средна оранжерия със стъклен покрив е 48 000-50 000 рубли. Те включват: профилни и крепежни метални ъгли, борови греди с различни напречни сечения, борови дъски, универсални панти, минерални стъклени листове, ондулин (универсална капачка за билото), самонарезни винтове, пирони за прозорци, уплътнител, водоотблъскваща импрегнация, боя за дърво, покривен филц, битум, пясъчно-чакълеста смес, дървени глазурирани перли и течни пирони. Точното количество строителни материали се определя от спецификата на избрания проект и детайлите на строителните планове.
За да се подготвите за самостоятелно изграждане на оранжерия, ще трябва да се запасите с необходимите инструменти. Ще ви трябват: лопата и гребло, гребло, няколко брадви, резачка, електрически трион, лост, нивелир или лазерен нивелир, ролетка, козли за работа с дърво, фугатор, ренде, рунде, комплект фрези, чукове с различни размери, бормашина, отвертка, шкурка, четки за рисуване и диамантена резачка за стъкло.
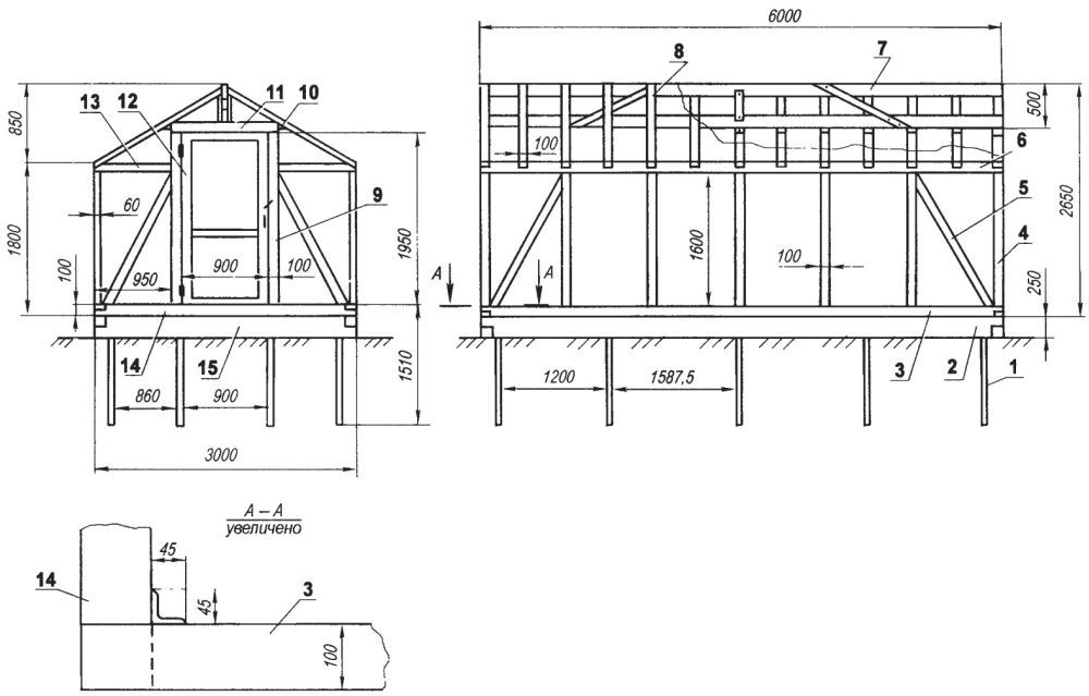
Стъпка по стъпка инструкции за самостоятелно изграждане на стъклена оранжерия
Рамката на стъклена оранжерия може да бъде изработена от дърво или метал.
Стъклена оранжерия, изработена от дърво
Обикновено можем да различим пет етапа на изграждане на оранжерии:
- подготвителен етап;
- образуване на долната облицовка;
- изграждане на вертикални стълбове;
- образуване на горната облицовка;
- монтаж на покрив;
- монтаж на стъкло.
Алгоритъмът за изграждане на дървена конструкция ще изглежда така:
Подготвителен етап
След като е избрано подходящо място, то трябва да се разчисти. Тревата се коси, дърветата се отсичат и пъновете се изкореняват. Мястото се нивелира — за проверка могат да се използват измервателни инструменти (нивелир или воден нивелир).

Фундаментната рамка е маркирана. Изкопава се изкоп и се запълва със смес от пясък и чакъл.
За хидроизолация се полага покривен филц.
Оформяне на долната облицовка
Необходимите компоненти са изработени от дървен материал, включително четири греди с размери 10x10 см. В рамките се изрязва жлеб за стъклените панели с помощта на фреза. След това всички дървени компоненти се обработват поне два пъти с хидрофобна и антисептична импрегнация.
Фундаментната рамка се закрепва с помощта на дюбелни или полудюбелни техники, след което се закрепва с винтове (дюбели или анкерни болтове), подсилва се с ъгли и се обработва с разтопен битум.

Фундаментната рамка се поставя върху ъглови профили, които действат като земни анкери, след което се монтира дървената рамка. Особено внимание се обръща на монтажа на вратата и вратите.
Изграждане на вертикални стълбове
Вертикалните греди за стълбове с размери 10 x 10 см или 5 x 5 см се изрязват на необходимата височина въз основа на необходимия брой стълбове. Ъгловите стълбове се закрепват към долната рамка с помощта на дюбели. Препоръчителният диаметър на дървените дюбели трябва да бъде равен или по-голям от 2 см.
За стабилизиране на конструкцията е оправдано използването на временни скоби.
Монтират се междинни стълбове. Крепежните елементи могат да включват разрези в долната облицовка, дюбели, винтове или метални пластини.

Оформяне на горната облицовка
Гредите се режат и съединяват с помощта на полу-препокриващо съединение. Те се закрепват към ъгловите стълбове с помощта на дюбели или винтове.
Монтаж на покрив
В краищата на фронтона на конструкцията, към горната греда на рамката от двата края е закрепен вертикален стълб. Препоръчително е да се закрепи или с помощта на съединителна фуга от равнина до край, или с метални крепежни плочи.
Гредата на билото се монтира и закрепва към стълбовете, след което гредите се закрепват към фронтоните. Препоръчително е да се използват скоби или пирони като крепежни елементи.
Гредите на гредите са монтирани върху рамката на оранжерията.
Монтаж на стъкло
Остъкляването започва от стените. Дървени летви или стъклопакети с размери 2 x 4 или 2 x 2 см се изрязват предварително и се закрепват с пирони.
Най-добре е рязането на стъклени листове да се повери на професионалист. Материалът трябва да бъде обезмаслен. Трябва да се спазва правилото за едно рязане. Имайте предвид, че размерите на листа трябва да са с 2-3 мм по-малки от пролуките между гредиците. Това се прави като превантивна мярка, тъй като дървото може да окаже натиск върху стъклото, докато се набъбва.
Оранжерията е остъклена. Може да се използва шпакловка или силиконов уплътнител, за да се предотврати проникването на влага в стъклото. При необходимост при монтаж на стъклото могат да се използват вендузи.
След нанасяне на уплътнителя, всеки стъклен панел се поставя на определеното му място и се закрепва с гумени блокчета, след което се закрепва с остъкляваща мъниста или полукръгла лента.

Остъкляването на покрива се извършва по подобен начин, отдолу нагоре. Препоръчително е стъклопакетите да се подсилят от вътрешната страна или да се заменят с греди с по-малко напречно сечение, а от страната на стрехите да се монтира дървена лайсна, за да се предотврати хлъзгането на стъклото.

Накрая, прозорците и вратите подлежат на остъкляване.
Последният етап
След завършване на остъкляването се препоръчва боядисване на дървената рамка.
Ондулиновите елементи се монтират на билото, като се започва от подветрената страна на покрива. За закрепване се препоръчват течни пирони. Припокриването трябва да е равно или по-голямо от 15 см.
Конструкцията е готова за експлоатация.
Стъклена оранжерия, изработена от метал върху лентова основа
Изграждането на метална оранжерия изисква солидна основа. Процесът може грубо да бъде разделен на няколко етапа:
- Предварително разчистване на обекта, неговото маркиране и изкопаване на изкоп с „напречно сечение“ 25*30 см;
- Уплътняване на дъното и стените на изкопа с засипка от пясък, чакъл или смес от тях, дебелината на възглавницата трябва да бъде 10 см;
- формиране на кофраж (за предпочитане с дъски), който трябва да се издига на 5 см над нивото на земята, препоръчителната дебелина на дъските не трябва да надвишава 2,5 см;
- Приготвяне на бетон с помощта на голям контейнер или бетонобъркачка, като класът цимент и неговите пропорции в сместа с натрошен камък, вода и пясък се избират индивидуално;
- 50% от кофража е излят. Върху бетона се полагат арматурни пръти (може да се използва тел за укрепването им);
- 100% запълване на кофража (препоръчително е да се използва нивелир и въжета за контрол);
Покрийте кофража с полиетилен и го напръскайте с вода в продължение на една седмица, за да предотвратите евентуално напукване на бетона. След като бетонът се втвърди, отстранете кофража.
Изграждане на мазето:
- изработен от тухла;
- от пяна блокове;
Възможността за работа с метал и "приятелството" със заваръчна машина ви позволяват да използвате метални ъгли за изграждане на рамка:
- За да се създаде долната облицовка, към основата се закрепва ъгъл 10x10 см или 5x5 см с помощта на анкерни болтове. Вертикалната му част трябва да бъде разположена от вътрешната страна.
- Опорните стълбове се оформят от ъгли 2,5*2,5 см или 5*5 см, които се заваряват в Т-образен профил („Т-образен“).
- Трети ъгъл е заварен от едната страна на Т-образната греда.
- Вертикалните стълбове са заварени към долната облицовка, след което се монтира горната облицовка.
- На земята, билото на покрива и гредите са свързани, след което са заварени към горната облицовка.
На последния етап се извършва остъкляване:
- силиконов уплътнител се нанася върху ръба на стъклото;
- Стъклото се монтира върху вътрешна рамка, образувана от ъглов профил, и се фиксира отвън с помощта на скоби или малки ъгли (за свързване се използват болтове или заваряване).
Стъклена оранжерия, направена от стари рамки на прозорци
Редът за строителство е следният:
- Монтират се горните и долните облицовки, както и вертикалните стълбове.
- Излишните елементи (например дръжки) се премахват от рамките.
- Стъклото се почиства и фиксира.
- Рамките се закрепват с помощта на метални ъгли и плочи.
- Препоръчително е покривът да се покрие с клетъчен поликарбонат или полиетиленово фолио.
Прочетете статията за Изграждане на оранжерия и парник от стари рамки на прозорци със собствените си ръце.
Интериорен дизайн на стъклена оранжерия
Обикновено в оранжерия правя 2-3 лехи, между които полагам пътеки с ширина 0,5 м.
Най-добре е да използвате неплъзгаща се гумена повърхност. Повдигнатите лехи са за предпочитане. За тази цел често се използват бордюри.

Системата за капково напояване се е доказала като ефективна.

За отопление се използват печки или технология на „топло легло“, състояща се от траншеи, пълни с листа и пръст. Тяхното разлагане генерира топлина.
За да се поддържа оптимален микроклимат, много оранжерии са оборудвани с термозадвижвания.
Осветление
Стъклото пропуска добре слънчевата светлина, така че само редки култури, които се нуждаят от вечерна слънчева светлина, се нуждаят от допълнително осветление. За тези цели се използват LED и флуоресцентни източници на светлина или фитолампи. Осветителните тела често са свързани към реле с функция за автоматично включване.
Отопление на оранжерии
Стъклените оранжерии са сред постоянните конструкции, подходящи за инсталиране на пълноценни отоплителни системи. За тази цел се използват топлинни пистолети, електрически конвектори, инфрачервени нагреватели, печки с гърне, котелно-радиаторни системи и подово отопление.
Изборът на вид отопление се определя от:
- размери на сградата;
- сезонност на работата на оранжериите;
- наличието на енергийни ресурси.
Готови опции за стъклени оранжерии: съвети за избор + фотогалерия
За да направите правилния избор, трябва да определите формата, размерите и предназначението на оранжерията, както и да изберете подходящо място за конструкцията.
След покупката е необходимо да проверите пълния комплект, за да се уверите, че отговаря на параметрите, както и наличието на чертеж и инструкции за монтаж.
Препоръчително е да се обърне внимание на цената, която често е косвен показател за качеството на материалите.
Как да се грижим за стъклена оранжерия
Внимателното спазване на правилата за поддръжка гарантира запазването на естетическите свойства на оранжерията за дълго време:
- Препоръчително е стъклото да се измива със същите продукти, които се използват за почистване на домашни прозорци.
- На места, където се образува конденз и се създават благоприятни условия за растежа на микрофлората (например в ъглите), се препоръчва използването на антисептик за дезинфекция.
- Поддържайте дървото внимателно, отстранявайте драскотини и не забравяйте да го боядисвате редовно.
- Внимателно следете за плътността на контактите между дървените и стъклените елементи.
Правилната поддръжка на конструкцията ще ѝ позволи да радва окото и да осигурява ползи в продължение на десетилетия.
Сравнение на стъклени и поликарбонатни оранжерии

Сравнителните характеристики на два вида оранжерии са дадени в таблицата по-долу:
| Сравнение | Стъклени оранжерии | Поликарбонатни оранжерии |
| Предимства | Ниско ниво на запалване, висока пожарна безопасност | |
| Способността за запазване на външния вид за дълго време | Висока якост | |
| Дълъг експлоатационен живот (до 50 години) | Добри топлоизолационни свойства – 8 W/m2 * °C | |
| Химическа инертност | Ниска топлопроводимост – 0,14 W/m2 * °C | |
| Лекота на поддръжка | Леко тегло – 1,3 м2 | |
| Лесна подмяна в случай на повреда или нарушаване на целостта | Леснота на инсталиране | |
| Висока прозрачност – 92% | Минимални разходи за време за поддръжка | |
| С подходяща квалификация материалът е лесен за обработка и монтаж. | ||
| Ниска цена на материалите | ||
| Гъвкавост | ||
| Недостатъци | Сравнително високо тегло – до 10 кг на м² | Препоръчително е да поверите монтажа на професионалисти. |
| Ниски топлоизолационни свойства – 185 W/m2 * °C | Гъвкавостта се превръща в уязвимост, когато снежната възглавница е тежка. | |
| Висока топлопроводимост – 0,8-0,9 W/m2 * °C | Прозрачността е около 86% | |
| Висока цена | Кратък експлоатационен живот (до 10 години) | |
| Работата и монтажът изискват повишено внимание. | Ниска устойчивост на химически реактиви | |













































































































