Не е нужно да купувате оранжерия; можете да си построите сами. В тази статия ще обясним как да изберете правилното място, да изградите основа, ще предоставим подробни инструкции за изграждане на определени видове, а също така ще разгледаме осветлението и отоплението.
Съдържание
- 1 Характеристики на разположението на оранжерии
- 2 Видове покриви
- 3 Видове покривни материали
- 4 Фондация
- 5 Видове оранжерии и стъпка по стъпка инструкции за тяхното изграждане
- 6 Оценка за оранжерия с дървена рамка
- 7 Оценка за оранжерия със стоманена рамка
- 8 Други разходи
- 9 Отопление на оранжерии
- 10 Осветление в оранжерия
Характеристики на разположението на оранжерии
Домашните оранжерии изискват внимателен избор на място за строителство, тъй като реколтата зависи от това.
За да направите това, начертайте диаграма на обекта и вземете предвид следните фактори:
- Оранжерията трябва да бъде построена на открито пространство, като дърветата са разположени далеч от нея, за да се предотврати падането на сенки или счупени клони върху насажденията.
- Желателно е оранжерията да бъде защитена от вятъра с ограда.
- Необходимо е да се вземе предвид движението на слънцето през деня.
- Прозрачната страна на скатния покрив трябва да е обърната към южната страна на обекта.
Видове покриви
Преди да започне строителството, трябва да решите вида на покрива. Има:
- Фронтон – оранжерия във формата на къща.
- Арковидна – оформена като арка. Лесна е за монтаж и валежите не се натрупват върху покрива, което намалява деформацията на оранжерията. Тази форма също така разсейва светлината, което е полезно за растенията.
- Навесната оранжерия е прикрепена към сграда или ограда, обикновено от южната страна. Наклонът се изчислява така, че да се гарантира, че снегът не се натрупва, а по-скоро се плъзга. Навесната оранжерия улеснява свързването на комунални услуги.
- Плъзгащ се – покривът се движи. Ако е горещо, може да се премести, за да осигури по-добра слънчева светлина за насажденията. А през зимата може да се използва за дезинфекция на почвата (върху нея ще вали сняг).
Видове покривни материали
Основни материали и техните характеристики:
| Материал | Характеристика |
| Полиетиленово фолио | Най-рентабилният вариант. Важно е да се обезопаси добре. Влошава се в рамките на 2-3 години, а след година става грозен. Не може да се пере, тъй като оставя следи. Топлоизолацията му намалява след година. Шумоли при силен вятър. Освен това е безопасен от нараняване. |
|
Спанбонд |
Този дишащ нетъкан материал позволява лесно преминаване на кислород, осигурявайки необходимата влага, без да се намокря или губи топлина. Може да се реже с ножица и да се пере. Страда от вятър, не издържа дълго. |
| Поликарбонат |
Позволява ви да намалите броя на частите на рамката или да ги елиминирате напълно. Устойчива е на деформация и блокира шума от вятъра. Има експлоатационен живот от приблизително 25 години. Естетически приятна е и достатъчно издръжлива, за да издържи на падане без да се счупи. Прахът е невидим и може лесно да се отмие с вода, ако се появи. Осигурява отлична топлоизолация, дифузия на светлината и специален микроклимат. Кондензът се стича по повърхността, вместо да капе. |
| Стъкло
|
Необходими са здрава рамка и основа, както и защита от механични повреди. Ако е лошо монтирана, стъклената оранжерия ще трака. Изисква внимателно боравене, тъй като може да се счупи и да причини нараняване от парчета. Дъждът оставя следи. Не осигурява силен парников ефект или дифузна светлина. Материалите с лошо качество могат да създадат ефект, подобен на леща, което е вредно за растенията. |
Прочетете за различните видове оранжерии в статиите:
- Направи си сам поликарбонатна оранжерия
- Направи си сам стъклена оранжерия
- Слънчева къща във вашата градина: Оранжерия като произведение на изкуството
и много други статии по тази тема на нашия уебсайт Top.tomathouse.com: Всичко за градинарството.
Фондация
Избраният тип оранжерия определя нейната основа. Първо, маркирайте земята, така че страните да образуват прав ъгъл. За сезонна конструкция е подходяща дървена основа, изработена от дървен материал (10x15 или 15x15 см), обработен с антисептично или водоотблъскващо съединение за по-дълъг живот. Тя се поставя върху земята, но за предпочитане върху легло от уплътнен пясък или бетонни плочи.
За постоянна сграда ще е необходимо да се изкопае фундаментна яма. Може да се направи лентов фундамент - изкоп 30x30 см. На дъното се изсипва пясък, след което натрошен камък (обща дебелина: 50-70 см). Монтира се кофраж от дъски, полага се покривен филц и се излива бетон. Бетонът се пробива с лопата и се почуква отгоре, за да се отстрани въздухът. Основата се повдига на 20-50 см над земята. В основата се вграждат опорни стълбове или секции от метални ъгли.
Видове оранжерии и стъпка по стъпка инструкции за тяхното изграждане
Най-добрите проекти са автоматизирани структури, базирани на Arduino. Те включват задвижващ механизъм (линейно задвижване) за автоматично отваряне на врати и вентилация. Разбира се, може да бъде и обикновен термичен задвижващ механизъм.
Но като цяло тези оранжерии са оборудвани с всичко необходимо за автономна работа. Построяването на такава самостоятелно би било много трудно. Има и други готови проекти за оранжерии.
Предлагаме ви няколко домашно приготвени варианта с инструкции стъпка по стъпка.
Аркова (полукръгла) оранжерия
Трябва да действаме на етапи.
Чертежи на сводести оранжерии
Начертайте план. Ето няколко примера за планове за сводести оранжерии:
Фондация
Строителството започва с полагане на основите. Това се постига с помощта на:
- дървени греди - поставени на разстояние 120-140 см, за рамка, изработена от полипропиленови тръби;
- лента - направена, ако рамката е изработена от тежки материали.
Рамка
След това те изграждат арка от:
- зидария мрежа, която е прикрепена към стълбовете отдолу и завързана отгоре;
- пластмасови тръби - заварени или свързани с муфи, адаптери;
- стоманени профилни тръби 2x2 см - оставете разстояние от 100 см, дъгите се закрепват чрез заваряване;
- армировка от фибростъкло (диаметър 8-12 мм) – лесна за монтаж.
Покритие
Избраният материал е прикрепен към издигнатата рамка:
- филм или спанборд - трябва да бъдат закрепени отгоре с канап или въже;
- Поликарбонат - нарязаният лист се закрепва с помощта на специални самонарезни винтове с термични шайби.
Допълнителна информация
Врата:
- филм - направен с магнити (като мрежа против комари);
- дървена рамка;
- метална тръба - закрепена с панти.
Вентилационни прозорци:
- във филма - изрязват се дупки, всякаква подредба е възможна;
- дървена рамка - може да бъде срещу вратата, в покрива, страничните стени:
- в метална рамка - заварена рамка, изработена от ъгъл, поставена срещу вратата или в покрива, или отстрани, в зависимост от дизайна на оранжерията.
Всички тези опции са устойчиви на вятър и удобни за връзване на растения. Могат да се построят оранжерии с всякакъв размер (миниатюрни за разсад, малки или големи). Филмовите оранжерии са нискобюджетен вариант и се използват в промишленото производство на зеленчуци и в градинарството (чудесни са за отглеждане на домати и краставици).
Най-скъпият и трудоемък вариант е метална аркова рамка и поликарбонат, но такава оранжерия ще издържи по-дълго и ще изглежда по-естетически приятна.
Примери за създаване на различни сводести оранжерии
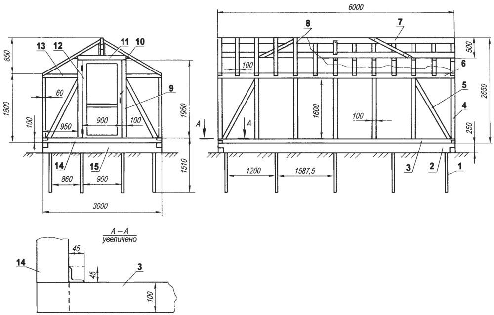
Оранжерия във формата на къща
Друга много популярна форма на покрив е двускатният покрив.
Планове за оранжерии
Фондация
Необходимостта от фундамент зависи от теглото на рамката. Ако е лека, не се използва постоянен фундамент, а по-скоро:
- Стоманени ъгли 4x4 см, забити в земята – предварително се пробиват отвори за закрепване на стълбовете на рамката, боядисани или запълнени с битум.
- Дървени греди – конструкцията обикновено е с размери 3x6 м.
Рамка
- Гредите се използват за закрепване на долната рамка, страничните панели и покрива. Ъглите са подсилени с допълнителни секции. Острите части са заоблени и обвити в мек материал.
- Поцинкован профил - сглобен от ребра, свързани заедно.
- Пластмасова полипропиленова тръба, свързана с фитинги и адаптери.
- Гипсокартонен профил – не изисква допълнителна обработка, лесно се огъва.
Покриващ материал
- Стреч фолио (като стреч фолио, но по-дебело) – увийте рамката на няколко припокриващи се слоя. Започнете с фронтоните, след това с останалите. Работете отдолу нагоре, за да предотвратите навлизането на дъжд вътре.
- Филм или агрофибър - опаковани или залепени.
- Поликарбонат – закрепва се със специални самонарезни винтове с термошайби.
- Стъклото, като правило, за домашно приготвени оранжерии се използват прозорци с двоен стъклопакет.
Допълнителна информация
Вратата е окачена на панти в страничната стена. Фолиото е увито, покрито с остъкляващи мъниста или ленти и нарязано. Прозорецът е направен по същия начин като вратата. Тежка рамка, изработена от рамки или метал, ще изисква фундамент. Обикновено се използва лентов фундамент.
Стъпка по стъпка инструкции за направата на оранжерия
- Стари рамки за прозорци (почти безплатен вариант) – размерът им определя размера на оранжерията. Те се закрепват към рамката или стълбовете. Пукнатините се запушват с уплътнител или се затварят с дъски.
- Вратата се изработва с помощта на една от рамките или балконска врата. Вентилационните отвори ще осигурят вентилация. По-добре е да опънете фолио върху покрива, тъй като това намалява теглото на конструкцията. Ако използвате рамки и за покрива, ще трябва да подсилите конструкцията с подпори.
- Металната рамка се закрепва към болтове, монтирани във фундамента преди изливането му. Рамката е изработена от стоманен канал или двоен ъглов профил, към който са заварени стълбове (1,6-1,8 м) и са закрепени заедно с профили. Покривът е свързан към стълбовете и в горната част към гредата. В покрива или срещу вратата е монтиран прозорец.
Стъклото се вмъква в рамки, образувани от двойни ъгли. Прозорците с двоен стъклопакет се използват за подобряване на топлоизолацията.
Стъклената и метална конструкция е скъп и трудоемък вариант, но е издръжлива. Различни видове оранжерии могат да бъдат построени чрез комбиниране на наличните материали.
Примери за създаване на оранжерийни къщи
Куполна оранжерия
Състои се от триъгълници и шестоъгълници. Необходима е основа. Това е доста сложен проект – труден монтаж, висока цена и трудоемки изчисления.
Предимството е издръжливостта + такава оранжерия пропуска добре светлина.
Рамката е изработена от дърво, профили или тръби, покрита с филм, и е поставено стъкло или поликарбонат.
Планове за куполни оранжерии
Те са изградени по следната технология:
- подгответе триъгълници;
- те се закрепват с винтове, образувайки купол;
- сглобяването започва отдолу - ще получите правилната форма;
- горният триъгълник е сгъваем и осигурява вентилация;
- врата – многоъгълна или правилна форма;
- Фолиото се опъва след сглобяването, което осигурява естетичен вид.
Примери за куполни оранжерии
Термос оранжерия
Термос оранжерия (подземна конструкция) изисква дълбока яма - около 200 см. Общата ѝ височина е 180 см, а ширината - 200-500 см. Изкопава се изкоп по долния ръб и се полагат стените. Включени са рампа за монтаж на стълба, въздуховоди, изолация на стените и хидроизолация.
Оценка за оранжерия с дървена рамка
Изчислението е дадено за дървена оранжерия с фронтон с ширина 3 м, дължина 6 м, височина на стената 1,6 м и височина на билото 2,45 м.
Оценка за рамката
| Материал | Колко е необходимо? | Цена |
|
Кантирана рендосана дъска за рамка и покрив 70 x 50 мм |
102 м |
≈ 80 рубли на линеен метър. Общо ≈ 8160 рубли. |
| Основна греда 150 x 150 мм | 18 м | ≈ 3600 рубли. |
| Кантирана рендосана дъска за подсилване на покрив 20 x 40 мм | 18 м | ≈ 25 рубли на линеен метър. Общо ≈ 450 рубли. |
| Ъгъл за закрепване на дървени конструкции 50 x 50 x 35 мм | 200 бр. | ≈ 850 рубли |
| Пиано панти за врати и прозорци с дължина 500 мм | 6 бр. |
≈ 50 рубли всяка. Общо ≈ 300 рубли. |
| Винтове с дължина 35 мм | 2 кг | ≈ 500 рубли |
| Антисептик за обработка на дърво | 3 л | ≈ 300 рубли (за най-евтиния) |
Обща цена без покритие ≈ 14 160 рубли.
Оценка за различни видове покрития
| Покритие | Колко е необходимо? | Цена | Обща цена на оранжерията (рамка + покритие) |
| Комплект стъкло с дебелина 4 мм | 96 м² | От 250 рубли на м². Общо ≈ 24 000 рубли. | ≈ 38 160 рубли |
| Поликарбонат с дебелина 4 мм | 8 листа с размери 2 x 6 м | От 1200 рубли на лист. Общо ≈ 9600 рубли. | ≈ 23 760 рубли |
| Армирано фолио с плътност 100 г на м² | 1 ролка с размери 6 x 25 м | От 8000 рубли. | ≈ 22 160 рубли |
Оценка за оранжерия със стоманена рамка
Изчислението е дадено за двускатна оранжерия, изработена от стоманен профил с ширина 3 м, дължина 6 м, височина на стената 1,6 м и височина на билото 2,45 м.
| Материал | Колко е необходимо? | Цена |
|
Профилирана стоманена тръба диаметър 40 x 40 мм |
30 м |
От 100 рубли на линеен метър. Общо ≈ 3000 рубли. |
| Стоманен ъгъл напречно сечение 30 x 30 мм |
100 м | От 80 рубли на линеен метър. Общо ≈ 8 000 рубли. |
| Крепежни елементи за монтаж
метален профил |
200 бр. | ≈ 700 рубли |
| Пиано панти за прозорци и врати
500 мм дължина |
6 бр. | От 120 рубли на артикул. Общо ≈ 720 рубли. |
Обща цена без покритие ≈ 12 420 рубли
Ако вземем предвид цената на покритието и цената на стоманената рамка, получаваме крайната цена:
- Стъкло – ≈ 36 420 рубли;
- Поликарбонат – ≈ 22 020 рубли;
- Армирано фолио – ≈ 20 420 рубли.
Други разходи
Това е само основната част от разходите, към която трябва да се добавят редица други точки:
- Тъй като подът в оранжерията трябва да е на 50 см под нивото на земята, трябва да се вземат предвид изкопните работи.
- Оборудване за отоплителна система (ако е необходимо).
- Монтаж на комуникации (ако е необходимо: електричество - ще ви е необходим електрически кабел, контакти, крушки, ключове; водоснабдяване за капково напояване - тръби (метални, металопластикови, полипропиленови и др.), фитинги, кранове, а ако оранжерията е за зимата, тръбите трябва да бъдат разположени на дълбочина най-малко 2,5 метра, за да се избегне замръзване.
- Рафтове за поставяне на растения на нива (не винаги се прави; понякога растенията се поставят директно в земята на пода).
- Защита от градушка (особено важна за оранжерии със стъклени покрития; за тази цел могат да се използват материали като полистиролова пяна, дунапрен и др., които винаги трябва да се държат под ръка).
- Инструмент, ако не е наличен.
- Ако се планира привличането на специалисти за някаква работа.
- Разработване на проект (ако е необходимо).
Нека разгледаме някои точки, които подобряват работата на оранжериите.
Отопление на оранжерии
По време на сурово време растенията се нуждаят от топлина. Има прости начини да направите това:
- Слънчев – базиран на парниковия ефект, създаден от слънчевата светлина. Възниква през лятото по време на силно слънцегреене.
- Биологично – една трета от стелажите са съставени от оборски тор или компост. Процесът на разлагане затопля корените и служи като тор.
Опцията за техническо отопление има няколко подтипа:
- Отопление с вода – под лехите се полага двоен ред тръби, свързани с бойлер. Ако бойлерът е разположен навън, той осигурява по-равномерно нагряване. За отопление се използват въглища или дърва. Понякога се използва топлогенератор.
- Газ – горелки или отоплителни уреди. За малки площи са достатъчни газови бутилки; в противен случай те трябва да бъдат свързани към отоплителната система на къщата. Монтират се вентилатори, за да се осигури равномерно разпределение на топлината.
- Коминът на печката е димоотвод, направен от хоризонтални тръби (метални, тухлени). Котелът е свързан с резервоар за вода – водна пещ. За голяма площ са необходими два котела. Коминът се издига на 1,5 метра над покрива, а проходът е добре изолиран.
- Електрически – нагревателен кабел с регулатор за създаване на оптимална температура. Подходящи са алуминиеви радиатори или електрически конвектори (които циркулират въздуха, а не го изсушават). Те се монтират на скоби и може да се зададе желаната температура. Могат да се използват таймери за регулиране на температурата в зависимост от времето на деня. Мощността на устройствата и техният брой зависят от размера на оранжерията. Използват се и инфрачервени излъчватели; те не само осигуряват топлина, но и предотвратяват болести по растенията и създават оптимален микроклимат.
Тръби и отоплителни устройства се поставят по периметъра на оранжерията.
Топлоизолацията на дъното е от съществено значение. Освен това, инсталирайте:
- термометри – определят температурата на въздуха и почвата;
- термостат – контролира отоплението в зависимост от показанията.
Прочетете статията за най-добрите проекти за отопление на оранжерии.
Осветление в оранжерия
Целогодишната оранжерия изисква допълнително осветително оборудване, тъй като естествената светлина няма да е достатъчна.
Използва се от:
- Класически лампи – на кръстовището на покрива и стените или високо отстрани.
- LED лампите са идеалният вариант за големи площи (спестяват енергия). Те са издръжливи и безопасни за работа. Монтират се в най-високата точка на тавана за максимално покритие.
Автоматично превключване – таймер. Създава комфорт, като симулира дневните часове и изпраща команди към осветлението за стартиране и спиране на работа. Този вариант за оранжерия е подходящ за професионалисти, отглеждащи зеленчуци, цветя и екзотични растения целогодишно, включително през зимата.
За сезонно строителство не е необходимо допълнително осветление.





























































































































